ARCHITECTURE
3 - 5
CITY CENTRE DEVELOPMENT
HALIFAX, NOVA SCOTIA
Ekistics prepared development concepts for a new City Centre development which included the design for two new buildings on different streets.
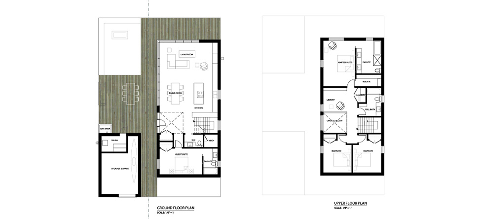
SAINT JOSEPH DEVELOPMENT
HALIFAX, NS
Ekistics was retained by a local developer to prepare development concepts and planning approvals for the Saint Joseph development project in Halifax. The Development Agreement for the project was signed in 2011.
2 - 2
CUNARD BLOCK DEVELOPMENT
HALIFAX, NS
Ekistics was retained by the Provincial Waterfront Development Corporation to prepare a master plan for the development of the Cunard Block site on the Halifax Waterfront. Following that contract, the firm was hired to by a local developer to prepare a more detailed RFP submission for the site.
4 - 6
KINGSWOOD TOWNHOMES
FREDERICTON, NB
Ekistics is preparing the detailed design and interior design for a new townhouse cluster on the Kingswood Golf Course in Fredericton as part of a larger master planned residential community development.
4 - 4
ROCKINGHAM SOUTH
HALIFAX, NOVA SCOTIA
Ekistics is working with WM Fares to prepare a new master planned community for Halifax. The firm is working with WM Fares to prepare the design of all buildings in the development including, mixed use, multi-unit residential and townhomes.
2 - 7
LUCAS DEVELOPMENT
EAST HANTS, NOVA SCOTIA
Ekistics is working with WM Fares to prepare a master planned development for east Hants that consists of semi's, a townhome cluster and multi-unit buildings. The firm is overseeing site master planning, engineering and architecture.
1 - 5
BEDFORD HIGHWAY DEVELOPMENT
BEDFORD, NOVA SCOTIA
Ekistics is working with WM Fares to prepare a conceptual design study for a new development on the Bedford Highway.
3 - 3
LAKE LOON DEVELOPMENT
DARTMOUTH, NOVA SCOTIA
Ekistics prepared the site master plan, architectural drawings and oversaw the planning approvals for this new 160 unit development on Lake Loon in Dartmouth Nova Scotia.
2 - 5
BAYERS LAKE DEVELOPMENT
HALIFAX, NOVA SCOTIA
Ekistics worked with WM Fares to develop an architectural design study for a new office and industrial development in the Bayers Lake Industrial Park. The building design is a good blend of modern office and industrial for the Park.
3 - 3
PEPPERELL STREET DEVELOPMENT
HALIFAX, NOVA SCOTIA
Ekistics prepared development plans for a new 12-storey development on Pepperell street in Halifax for Dexel Developments.
1 - 4
BATOCHE NATIONAL HISTORIC SITE
BATOCHE, SASKATCHEWAN
The seigneurial, or river lot land division system, can be seen as a narrative through which the culture and struggle of the Métis people can be viewed. From a design perspective it provides a rich tapestry and a foundational narrative for interpreting the landscape. Ekistics and Form:Media prepared the design for a design build project at the Parks Canada site.
1 - 5
INVERNESS BEACH RESORT
INVERNESS, NOVA SCOTIA
Ekistics was hired to master plan an ocean-front property that has been in the MacLeod family for decades. It was critical to design units that capitalized on ocean views and created a variety of unit types that appealed to giving them access and lead people from all walks of life to this beautiful part of our province.
1 - 7
Architecture
Ekistics' approach to architecture begins with the site and a deep understanding of the contextual and cultural sensitivity of the building. Our interdisciplinary approach to architecture brings together landscape architects, planners, environmental designers, engineers and interior designers with our architects at the very early phases of the project to ensure the development is feasible, responds to local and regional issues and addresses the widest range of professional input at an early stage. This approach usually means that the building is easier to approve, is cost effective, and responds succinctly to the owners design program. Let us show you how this approach makes for great buildings.
Download our Architecture Brochure